Save
Ask
Tour
Hide
$45,000
New Listing
1223 Preston StreetWaco, TX 76704
For Sale|Single Family Residence|Active
1
Bed
1
Total Bath
1
Full Bath
490
SqFt
$92
/SqFt
1949
Built
Subdivision:
Davis J F Tr
County:
McLennan
Call Now: 469-850-2170
Is this the listing for you? We can help make it yours.
469-850-2170



Save
Ask
Tour
Hide
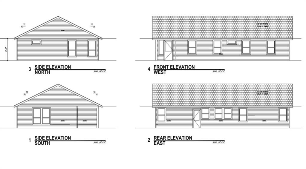
Investor Opportunity – Cleared and Ready to Build Excellent opportunity for investors or builders! Demolition has already been completed, and the property is cleared and ready for construction. The current owner has also taken the next step by hiring a licensed engineer—structural reports and preliminary building plans are complete and available upon request. All the prep work has been done—just bring your vision and start building. Contact the listing agent for more details and to request engineering documents.
Save
Ask
Tour
Hide
Listing Snapshot
Price
$45,000
Days On Site
0 Days
Bedrooms
1
Inside Area (SqFt)
490 sqft
Total Baths
1
Full Baths
1
Partial Baths
N/A
Lot Size
0.141 Acres
Year Built
1949
MLS® Number
21196567
Status
Active
Property Tax
$1,200
HOA/Condo/Coop Fees
N/A
Sq Ft Source
N/A
Friends & Family
Recent Activity
| 12 hours ago | Listing updated with changes from the MLS® | |
| 12 hours ago | Listing first seen on site |
General Features
Acres
0.141
Levels
One
Parking
Driveway
Property Sub Type
Single Family Residence
Special Circumstances
Standard
Utilities
Other
Interior Features
Appliances
None
Interior
Other
Living Room
Dimensions - 15 x 10Level - First
Master Bedroom
Dimensions - 10 x 10Level - First
Save
Ask
Tour
Hide
Community Features
School District
Waco ISD
Schools
School District
Waco ISD
Elementary School
JH Hines
Middle School
GW Carver
High School
Waco
Listing courtesy of Denise Petty of Denise Petty denisej2009@live.com
© 2020 North Texas Real Estate Information Systems. All rights reserved. Information is deemed reliable but is not guaranteed accurate by the MLS or NTREIS. The information being provided is for the consumer's personal, non-commercial use, and may not be reproduced, redistributed, or used for any purpose other than to identify prospective properties consumers may be interested in purchasing.
Last checked: 2026-03-04 02:12 AM CST
© 2020 North Texas Real Estate Information Systems. All rights reserved. Information is deemed reliable but is not guaranteed accurate by the MLS or NTREIS. The information being provided is for the consumer's personal, non-commercial use, and may not be reproduced, redistributed, or used for any purpose other than to identify prospective properties consumers may be interested in purchasing.
Last checked: 2026-03-04 02:12 AM CST
Neighborhood & Commute
Source: Walkscore
Disclosure: Community information and market data powered by Constellation Data Labs. Information is deemed reliable but not guaranteed.
Save
Ask
Tour
Hide
Did you know? You can invite friends and family to your search. They can join your search, rate and discuss listings with you.