4544 Community CourtPlano, TX 75024

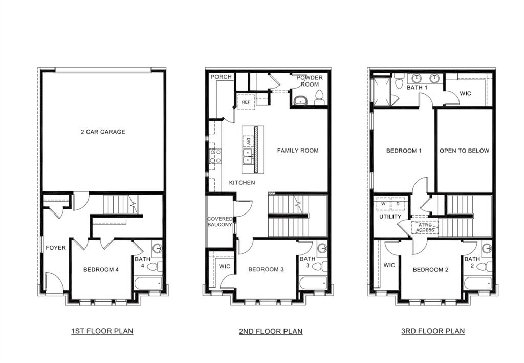
Welcome to the Mustang floorplan — a thoughtfully designed three-story home offering 1,727 square feet of modern living space. The first floor includes a private bedroom with full bath, perfect for guests or a home office, along with convenient garage access.On the second floor, enjoy open-concept living with a spacious kitchen featuring an oversized island with quartz countertops, soft-close shaker-style cabinetry, and a bright family room that opens to a covered balcony — perfect for entertaining or relaxing outdoors.The third floor features the private primary suite with walk-in closet and dual vanity bath, along with two additional bedrooms each with their own bath for ultimate comfort and privacy.This home includes a two-car garage, energy-efficient features, and contemporary finishes throughout.Disclaimer: Photos shown here are representational and may include options or upgrades not included in the standard community plan. Prices, plans, features, and co-broke are subject to change without notice. Additional restrictions may apply. Square footages are approximate.
3 days ago | Listing updated with changes from the MLS® | |
3 days ago | Listing first seen on site |

© 2020 North Texas Real Estate Information Systems. All rights reserved. Information is deemed reliable but is not guaranteed accurate by the MLS or NTREIS. The information being provided is for the consumer's personal, non-commercial use, and may not be reproduced, redistributed, or used for any purpose other than to identify prospective properties consumers may be interested in purchasing.
Last checked: 2025-10-16 04:27 PM CDT
Did you know? You can invite friends and family to your search. They can join your search, rate and discuss listings with you.